01總體概況
廣州市黃埔區(qū)科學城商業(yè)廣場高德匯項目占地面積約5萬平方米,建筑面積約9萬平方米,停車位570余個,
商業(yè)樓層為A、B座。項目位于科學城核心區(qū),矗立于廣州黃埔區(qū)科學城總部經濟核心CBD區(qū)域的綠軸廣場,
北鄰翡翠希爾頓酒店,南面初心使命實踐館,地理位置優(yōu)越。
科學城商業(yè)廣場A5棟(高德匯B棟),地上6層,每層建筑面積為5150㎡。具體位置及相關實景圖如下:

科學城商業(yè)廣場A5棟高德匯B棟地圖

科學城優(yōu)托邦俯瞰圖

科學城商業(yè)廣場A5棟
02項目配套情況
科學城商業(yè)廣場A5棟(高德匯B棟)擁有完善的配套設施,具體情況如下:
1、城市配套:臨近國際體育演藝中心、創(chuàng)業(yè)公園、香雪公園、翡翠希爾頓酒店、國際網球中心等知名場所。
項目3公里內覆蓋260多棟寫字樓,230多所學校,190多個住宅區(qū)。
2、人口環(huán)境:15分鐘內車程商圈輻射廣闊,可至科學城邊沿的天河東圃黃村-新塘片區(qū)、珠吉片區(qū)、蘿崗
中心區(qū)、聯和街道區(qū)、 黃埔大沙地片區(qū)、蘿崗東區(qū),輻射人口近30萬。
3、項目交通:距離21號線地鐵科學城站出口僅500米,步行僅需6分鐘。公交車輛506、508、573、574、
506A、576、B4A、349等十多條線路可到達市中心。配有K1、K2、K3號三條交通專線接駁,大大方便市民前往。
03招租情況
科學城商業(yè)廣場A5棟(高德匯B棟)目前共有可出租物業(yè)9334.57平方米,租金及管理費等面議,具體情況如下:
1樓101、102、106號房物業(yè)





2樓203、206號房物業(yè)




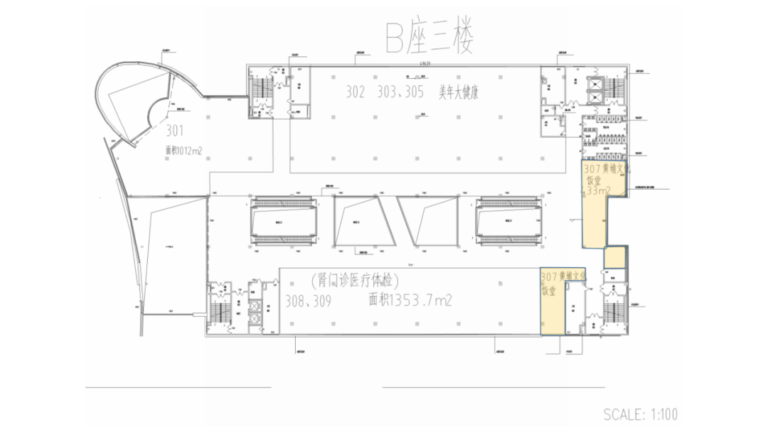
3樓307-1、307-2號房物業(yè)



3樓307-1號房物業(yè)


3樓307-2號房物業(yè)
4樓401、408號房物業(yè)


4樓401號房物業(yè)




4樓408號房物業(yè)
聯系人:程小姐,18826414623
地址:廣州市黃埔區(qū)神舟路18號潤慧科技園D棟3樓





官方微博
官方微信
主體備案號:粵ICP備 17160872 號